模切网首页
人才市场
模切货源
厂商资料
模切商城
模切团购
人工询价
资讯中心
完善并刷新个人简历
升级VIP会员!
欢迎
游客
,
注册
|
登录
|
会员
|
界面
|
简洁版本
|
在线
|
帮助
模切论坛
模切论坛
模切行业论坛
『 模切技术动态 』
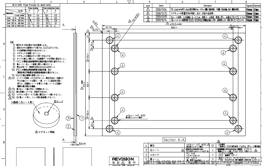
请教各位老大,这款图纸的加工工艺
本主题被查看47316次, 共6个帖子, 1页, 当前为第
1
页 选择页数: 1 跳转到第
页
上一主题
下一主题
标题: 请教各位老大,这款图纸的加工工艺
ouhaijun520
一種感覺
模切新手
UID: 21012
来自: 湖南
精华:
0
积分: 33
帖子: 23
注册: 2011/4/20 8:45:00
状态:
离线
威望: 10.00
金钱: 4.20 元
发短消息
用户资料
树型
回复
引用
只看楼主
2011-08-15 08:33
请教各位老大,这款图纸的加工工艺
大家好!请帮我看下附件图纸有什么好的加工工艺没。
文件名:
QQ截图未命名.png
下载次数:
0
文件类型:
image/x-png
文件大小:
上传时间:
2011/8/15 8:33:23
描述:
png
#1
大
中
小
luck099
luck099
模切会员
UID: 24370
来自: 中国--湖北
精华:
0
积分: 82
帖子: 72
注册: 2011/9/4 11:17:00
状态:
离线
威望: 10.00
金钱: 8.65 元
发短消息
用户资料
树型
回复
引用
2011-09-04 11:47
回复:请教各位老大,这款图纸的加工工艺
有CAD图纸吗?上图中的要求不是很明确。
#2
大
中
小
a510210410
模切新手
UID: 15823
来自:
精华:
0
积分: 18
帖子: 8
注册: 2010/7/2 9:42:00
状态:
离线
威望: 10.00
金钱: 2.10 元
发短消息
用户资料
树型
回复
引用
2011-12-12 15:27
回复:请教各位老大,这款图纸的加工工艺
M双面胶模切冲型 裁片9495MP,LE,9448A,615,9448AB,9500PC,950,9080A日东5000NS,500需要的联系□:13632931296苏R
#3
大
中
小
蓝天草原
模切新手
UID: 35731
来自:
精华:
0
积分: 15
帖子: 5
注册: 2012/12/26 12:41:00
状态:
离线
威望: 10.00
金钱: 1.50 元
发短消息
用户资料
树型
回复
引用
2013-02-04 19:13
回复:请教各位老大,这款图纸的加工工艺
图片不是很清楚!数据看不清楚!
#4
大
中
小
圆刀模具
中级模切
UID: 41303
来自: 河北石家庄
精华:
0
积分: 323
帖子: 313
注册: 2013/7/30 14:46:00
状态:
离线
威望: 10.00
金钱: 35.90 元
发短消息
用户资料
树型
回复
引用
2013-08-22 14:08
回复:请教各位老大,这款图纸的加工工艺
同感。
#5
大
中
小
511225
中级模切
UID: 10860
来自:
精华:
0
积分: 222
帖子: 212
注册: 2009/9/5 13:54:00
状态:
离线
威望: 10.00
金钱: 24.05 元
发短消息
用户资料
树型
回复
引用
2014-06-26 11:16
回复:请教各位老大,这款图纸的加工工艺
同感。
#6
大
中
小
本主题被查看47316次, 共6个帖子, 1页, 当前为第
1
页 选择页数: 1 跳转到第
页
论坛跳转...
模切行业论坛
『 模切行业纵览 』
『 模切技术讨论 』
『 模切材料专区』
『 模切技术动态 』
『 模切相关技术与动态 』
『模切技术团队版块』
『 光电模切专区 』
『模切学院版块』
论坛服务
『 人才市场 』
『 供求交易 』
『 社区服务 』
『 论坛公告及会员必读 』
现在的时间是 2026-04-19 17:19:29
关于我们
|
VIP会员服务
|
广告服务
|
隐私声明
|
服务条款
|
网站地图
|
联系我们
|
友情链接
|
帮助中心
© 模切网版权所有 不得转载
粤ICP备07017347号